America's history through the lens of 20th century broadcast media
Copyright 2018 Greenstone Media Consulting, LLC
Library - Networks - National Broadcasting Company - NBC
 
Radio Cities/Studio Locations
SAN FRANCISCO (both Sutter Street and Taylor Street)
Goto NBC - page 1 [General Information]

Original Studio 111 Sutter Street (pre-Radio City)

Hunter-Dulin Building - postcard

Hunter-Dulin Building today - entry light

Hunter-Dulin Building today - entry

Sutter Street Studio 22nd Floor Plan

20th Floor - Studio A Door to left

Max Dolin conducting Firestone Group in Studio A - 1929

Max Dolin conducting NBC Orchestra in Studio A

Max Dolin

Elmer Crowhurst at the Robert Morton 6-rank organ

Studio pictured in NBC 10th Anniversary brochure (which noted there were 9 in the Sutter Street location)

Standard on Parade program, Meredith Willson leading the orchestra, Studio A 1933

Notes on Hunter-Dulin Building

Pacific Vagabonds Jul 1930 (What's On the Air) - photo

Pacific Vagabonds Jul 1930 (What's On the Air) - article

Jimmy Lyons, Sound Effects Man (RCA) article

Second Floor Lobby (John Schneider)

Standard School Broadcast (Jennings Pierce, anncr) 1928

Sutter Street Transmission Room

Setting up the Orange Network 1927 - technical operations room

News about Sutter Street Studios (Oregonian) 1934

Robert Morton Organ used in Sutter Street Studios

Robert Morton Organ stops on console

Organ nameplate

Some of the organ's pipes

NBC Orchestra in Studio A

NBC Staff Gathered in Studio A

Radio City 420 Taylor Street

Radio City San Francisco/KPO Inaugural Brochure

San Francisco's Radio City - Architectural Record Nov 1942

Exterior logo Detail

Main Entry Doors

First Floor Plan

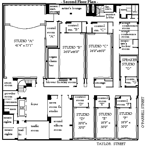
Second Floor Plan

Third Floor Plan

Fourth Floor Plan

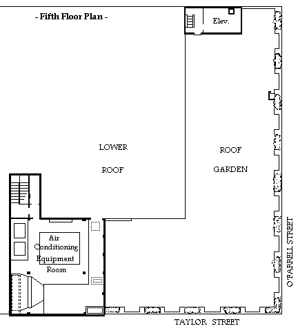
FIfth Floor Plan

Grand Staircase

Lobby

Lobby and Reception Desk

Lobby (Maynard Parker)

Lobby Second Floor Newsroom in the rear

Lobby of Blue Network and KGO 3rd Floor

Sound Effects Storage Room 2nd Floor

Managers Office 4th Floor

Recording Room 3rd Floor

Recording Room 3rd Floor - alt view

Recording Room 3rd Floor looking into Blue Network Lobby

Studio A (John Schneider)

Studio A Stage - closeup (John Schneider)

Studio A as Viewed from the Stage

Studio A during Rehearsal

Studio A Rehearsal in Progress

Main Control Room of Studio A

Clients Booth Studio A 3rd Floor

Studio B (Studio C was identical) (John Schneider)

Organist Performing in Studio B

Control Room Studio B or C

Studio B Organ Chamber Baffle

Studio C 2nd Floor

Studio D (Studios E and F were all the same size) (John Schneider)

Studio D

Studio D, E or F

Studio D, E or F in Rehearsal

Control Room Studio D, E or F

Studio G 2nd Floor

Studio G 2nd Floor - alternate view

Studio H 3rd Floor as seen from Announce Booth - announcer is Bud Hyde

Studio H Control Room

Studio J Announce Booth 3rd Floor

Master Control Room

Control Room (John Schneider)

Clients Booth (John Schneider)

Clients Booth (Maynard Parker)

Traffic Room 2nd Floor

Wire Room

John Schneider's Excellent San Francisco Radio History website

NOTE:  This page contains links to both photos and PDFs.  Most photos (but not quite all nor the PDFs) can be seen as
a  photo gallery.  .
View Sutter Street Photo Gallery
View SF Radio City Photo Gallery